8 (495) 642-34-61
Московская обл.,Ногинский р-он, Есино, д. 1

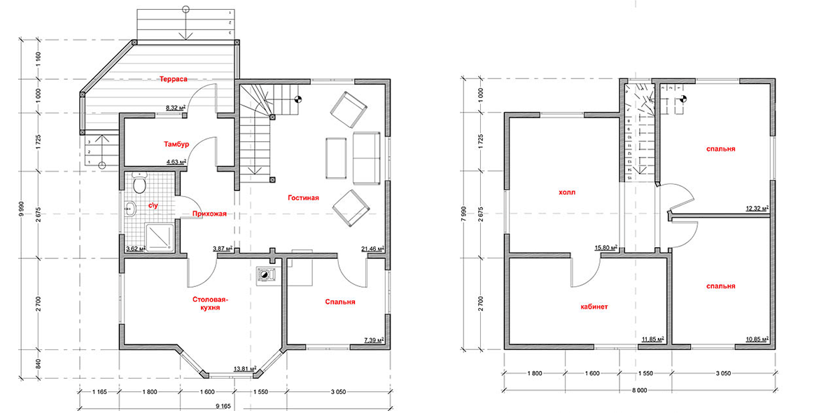
Проект дома «Покров» 10x9 метров под ключ

Общая площадь: 
114 м²
Площадь террас: 
0.0 м²
Жилая площадь: 
114 м
Габариты: 
10x9
Потолки 1й этаж: 
2.5 м
Потолки 2й этаж: 
2.4 м
Стандартная комплектация проекта «Покров» 10x9 метров каркасный
Фундамент
  1. Бетон М-300 (готовая смесь)
  2. Арматура 14мм
  3. Песок
  4. Доска 50*100мм
  5. Вязальная проволока
  6. Саморезы
  7. Вентиляционные трубы (асбест)
  8. Битумная мастика
  9. Гидроизоляция IZOVEK A
  10. Геодезия
Стены и перекрытия
  1. Брус венец 100/100/6мм
  2. Брус на стойки 100/100/6мм
  3. Доска пола + лаги 40/100/6мм
  4. Утеплитель стен и пола ROCKWOOL Лайтс батс 50мм
  5. OSBi влагостойкая 8мм
  6. Ветрозащита и пароизоляция IZOVEK B
  7. Отливы 10см
  8. Сайдинг MITTEN цвет ivory
  9. Антисептик "Сенеж"
  10. Саморезы, анкера, скобы, углы монтажные
Кровля
  1. Пароизоляция IZOVEK А
  2. Доска обрешетка 25/100/6мм
  3. Доска стропильная 50/150/6мм
  4. Водосточная система Docke (Деке)
  5. Утеплитель кровли ROCKWOOL Лайтс батс 100мм
  6. Софит перфорированный
  7. Металлочерепица липецкая 0,5мм М28
  8. Саморезы обрешотка 45мм
Черновой пол
  1. Лаги
  2. Черепной брусок
  3. Черновой пол - доска
  4. Обратная засыпка - керамзит
  5. Антисептик
  6. Крепеж балок, гвозди, глухари
  7. Доставка и монтаж
Окна и двери
  1. Двухкамерные окна NOVOTEX цвет белый с поворотно-откидным механизмом
  2. Дверь входная металлическая
  3. Двери межкомнатные шпонированные
В стоимость так же входит
  1. Доставка всех материалов
  2. Монтаж всех материалов
  3. Проживание и питание рабочих
  4. Все мелкие расходы
Стоимость проекта «Покров» 10x9м под ключ каркасный: 2 280 000 руб.
Стандартная комплектация проекта «Покров» 10x9 метров из блоков
Фундамент
  1. Бетон М-300 (готовая смесь)
  2. Арматура 14мм
  3. Песок
  4. Доска 50*100мм
  5. Вязальная проволока
  6. Саморезы
  7. Вентиляционные трубы (асбест)
  8. Битумная мастика
  9. Гидроизоляция IZOVEK A
  10. Геодезия
Стены и перекрытия
  1. Пеноблоки
  2. Раствор для кладки
  3. Устройство армопояса – согласно проекту
  4. Доска пола + лаги 40/100/6мм
  5. Утеплитель стен и пола ROCKWOOL Лайтс батс 50мм
  6. Отливы 10см
  7. Сайдинг MITTEN цвет ivory
  8. Саморезы, анкера, скобы, углы монтажные
Кровля
  1. Пароизоляция IZOVEK А
  2. Доска обрешетка 25/100/6мм
  3. Доска стропильная 50/150/6мм
  4. Водосточная система Docke (Деке)
  5. Утеплитель кровли ROCKWOOL Лайтс батс 100мм
  6. Софит перфорированный
  7. Металлочерепица липецкая 0,5мм М28
  8. Саморезы обрешотка 45мм
Черновой пол
  1. Лаги
  2. Черепной брусок
  3. Черновой пол - доска
  4. Обратная засыпка - керамзит
  5. Антисептик
  6. Крепеж балок, гвозди, глухари
  7. Доставка и монтаж
Окна и двери
  1. Двухкамерные окна NOVOTEX цвет белый с поворотно-откидным механизмом
  2. Дверь входная металлическая
  3. Двери межкомнатные шпонированные
В стоимость так же входит
  1. Доставка всех материалов
  2. Монтаж всех материалов
  3. Проживание и питание рабочих
  4. Все мелкие расходы
Стоимость проекта «Покров» 10x9м под ключ из блоков: 0 руб.
Стандартная комплектация проекта «Покров» 10x9 метров из кирпича
Фундамент
  1. Бетон М-300 (готовая смесь)
  2. Арматура 14мм
  3. Песок
  4. Доска 50*100мм
  5. Вязальная проволока
  6. Саморезы
  7. Вентиляционные трубы (асбест)
  8. Битумная мастика
  9. Гидроизоляция IZOVEK A
  10. Геодезия
Стены и перекрытия
  1. Пеноблоки
  2. Подкладочная сетка
  3. Кирпич облицовочный
  4. Раствор для кладки
  5. Устройство армопояса – согласно проекту
  6. Доска пола + лаги 40/100/6мм
  7. Утеплитель стен и пола ROCKWOOL Лайтс батс 50мм
  8. Отливы 10см
  9. Сайдинг MITTEN цвет ivory
  10. Саморезы, анкера, скобы, углы монтажные
Кровля
  1. Пароизоляция IZOVEK А
  2. Доска обрешетка 25/100/6мм
  3. Доска стропильная 50/150/6мм
  4. Водосточная система Docke (Деке)
  5. Утеплитель кровли ROCKWOOL Лайтс батс 100мм
  6. Софит перфорированный
  7. Металлочерепица липецкая 0,5мм М28
  8. Саморезы обрешотка 45мм
Черновой пол
  1. Лаги
  2. Черепной брусок
  3. Черновой пол - доска
  4. Обратная засыпка - керамзит
  5. Антисептик
  6. Крепеж балок, гвозди, глухари
  7. Доставка и монтаж
Окна и двери
  1. Двухкамерные окна NOVOTEX цвет белый с поворотно-откидным механизмом
  2. Дверь входная металлическая
  3. Двери межкомнатные шпонированные
В стоимость так же входит
  1. Доставка всех материалов
  2. Монтаж всех материалов
  3. Проживание и питание рабочих
  4. Все мелкие расходы
Стоимость проекта «Покров» 10x9м под ключ из кирпича: 0 руб.
Оставить заявку на дом
Описание проекта

Проект дома для круглогодичного проживания в стиле «модерн». Индивидуальность и изысканность проекту придают выносные элементы полукруглой формы, выполненные также как и весь дом из клееного бруса. Подобное решение зрительно разгружает фасад и завершает композицию дома.

Особенности проекта – наличие большой веранды, выполненной под одной крышей с домом, которая может быть активно использована для отдыха, а также оптимальное использование внутреннего пространства.

Изменить данную планировку

Заказать индивидуальный проект

Загрузите свой проект и узнайте его стоимость

© Copyright 2010-2015, Все права защищены. Карта сайта
8 (495) 642-34-61
Создание сайта: IMDESIGN

Спасибо, за отправленный запрос

Мы свяжемся с Вами в самое ближайшее время