8 (495) 642-34-61
Московская обл.,Ногинский р-он, Есино, д. 1

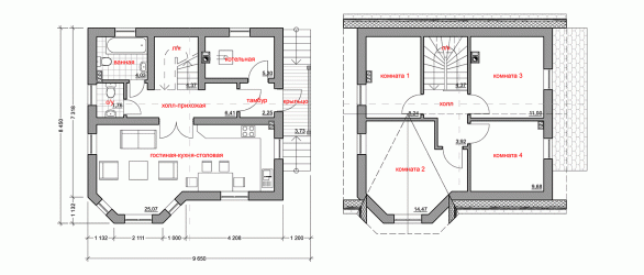
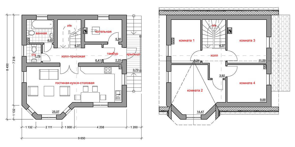
Проект дома «Воронеж» 9,6x8,4 метров под ключ

Общая площадь: 
104 м²
Площадь террас: 
3.7 м²
Жилая площадь: 
101 м
Габариты: 
9,6x8,4
Потолки 1й этаж: 
2.5 м
Потолки 2й этаж: 
2.4 м
Стандартная комплектация проекта «Воронеж» 9,6x8,4 метров каркасный
Фундамент
  1. Бетон М-300 (готовая смесь)
  2. Арматура 14мм
  3. Песок
  4. Доска 50*100мм
  5. Вязальная проволока
  6. Саморезы
  7. Вентиляционные трубы (асбест)
  8. Битумная мастика
  9. Гидроизоляция IZOVEK A
  10. Геодезия
Стены и перекрытия
  1. Брус венец 100/100/6мм
  2. Брус на стойки 100/100/6мм
  3. Доска пола + лаги 40/100/6мм
  4. Утеплитель стен и пола ROCKWOOL Лайтс батс 50мм
  5. OSBi влагостойкая 8мм
  6. Ветрозащита и пароизоляция IZOVEK B
  7. Отливы 10см
  8. Сайдинг MITTEN цвет ivory
  9. Антисептик "Сенеж"
  10. Саморезы, анкера, скобы, углы монтажные
Кровля
  1. Пароизоляция IZOVEK А
  2. Доска обрешетка 25/100/6мм
  3. Доска стропильная 50/150/6мм
  4. Водосточная система Docke (Деке)
  5. Утеплитель кровли ROCKWOOL Лайтс батс 100мм
  6. Софит перфорированный
  7. Металлочерепица липецкая 0,5мм М28
  8. Саморезы обрешотка 45мм
Черновой пол
  1. Лаги
  2. Черепной брусок
  3. Черновой пол - доска
  4. Обратная засыпка - керамзит
  5. Антисептик
  6. Крепеж балок, гвозди, глухари
  7. Доставка и монтаж
Окна и двери
  1. Двухкамерные окна NOVOTEX цвет белый с поворотно-откидным механизмом
  2. Дверь входная металлическая
  3. Двери межкомнатные шпонированные
В стоимость так же входит
  1. Доставка всех материалов
  2. Монтаж всех материалов
  3. Проживание и питание рабочих
  4. Все мелкие расходы
Стоимость проекта «Воронеж» 9,6x8,4м под ключ каркасный: 2 080 000 руб.
Стандартная комплектация проекта «Воронеж» 9,6x8,4 метров из блоков
Фундамент
  1. Бетон М-300 (готовая смесь)
  2. Арматура 14мм
  3. Песок
  4. Доска 50*100мм
  5. Вязальная проволока
  6. Саморезы
  7. Вентиляционные трубы (асбест)
  8. Битумная мастика
  9. Гидроизоляция IZOVEK A
  10. Геодезия
Стены и перекрытия
  1. Пеноблоки
  2. Раствор для кладки
  3. Устройство армопояса – согласно проекту
  4. Доска пола + лаги 40/100/6мм
  5. Утеплитель стен и пола ROCKWOOL Лайтс батс 50мм
  6. Отливы 10см
  7. Сайдинг MITTEN цвет ivory
  8. Саморезы, анкера, скобы, углы монтажные
Кровля
  1. Пароизоляция IZOVEK А
  2. Доска обрешетка 25/100/6мм
  3. Доска стропильная 50/150/6мм
  4. Водосточная система Docke (Деке)
  5. Утеплитель кровли ROCKWOOL Лайтс батс 100мм
  6. Софит перфорированный
  7. Металлочерепица липецкая 0,5мм М28
  8. Саморезы обрешотка 45мм
Черновой пол
  1. Лаги
  2. Черепной брусок
  3. Черновой пол - доска
  4. Обратная засыпка - керамзит
  5. Антисептик
  6. Крепеж балок, гвозди, глухари
  7. Доставка и монтаж
Окна и двери
  1. Двухкамерные окна NOVOTEX цвет белый с поворотно-откидным механизмом
  2. Дверь входная металлическая
  3. Двери межкомнатные шпонированные
В стоимость так же входит
  1. Доставка всех материалов
  2. Монтаж всех материалов
  3. Проживание и питание рабочих
  4. Все мелкие расходы
Стоимость проекта «Воронеж» 9,6x8,4м под ключ из блоков: 0 руб.
Стандартная комплектация проекта «Воронеж» 9,6x8,4 метров из кирпича
Фундамент
  1. Бетон М-300 (готовая смесь)
  2. Арматура 14мм
  3. Песок
  4. Доска 50*100мм
  5. Вязальная проволока
  6. Саморезы
  7. Вентиляционные трубы (асбест)
  8. Битумная мастика
  9. Гидроизоляция IZOVEK A
  10. Геодезия
Стены и перекрытия
  1. Пеноблоки
  2. Подкладочная сетка
  3. Кирпич облицовочный
  4. Раствор для кладки
  5. Устройство армопояса – согласно проекту
  6. Доска пола + лаги 40/100/6мм
  7. Утеплитель стен и пола ROCKWOOL Лайтс батс 50мм
  8. Отливы 10см
  9. Сайдинг MITTEN цвет ivory
  10. Саморезы, анкера, скобы, углы монтажные
Кровля
  1. Пароизоляция IZOVEK А
  2. Доска обрешетка 25/100/6мм
  3. Доска стропильная 50/150/6мм
  4. Водосточная система Docke (Деке)
  5. Утеплитель кровли ROCKWOOL Лайтс батс 100мм
  6. Софит перфорированный
  7. Металлочерепица липецкая 0,5мм М28
  8. Саморезы обрешотка 45мм
Черновой пол
  1. Лаги
  2. Черепной брусок
  3. Черновой пол - доска
  4. Обратная засыпка - керамзит
  5. Антисептик
  6. Крепеж балок, гвозди, глухари
  7. Доставка и монтаж
Окна и двери
  1. Двухкамерные окна NOVOTEX цвет белый с поворотно-откидным механизмом
  2. Дверь входная металлическая
  3. Двери межкомнатные шпонированные
В стоимость так же входит
  1. Доставка всех материалов
  2. Монтаж всех материалов
  3. Проживание и питание рабочих
  4. Все мелкие расходы
Стоимость проекта «Воронеж» 9,6x8,4м под ключ из кирпича: 0 руб.
Оставить заявку на дом

Изменить данную планировку

Заказать индивидуальный проект

Загрузите свой проект и узнайте его стоимость

© Copyright 2010-2015, Все права защищены. Карта сайта
8 (495) 642-34-61
Создание сайта: IMDESIGN

Спасибо, за отправленный запрос

Мы свяжемся с Вами в самое ближайшее время